A ‘museum in the making’, showcasing an iconic collection of railway locomotives at the home of Hornby.Re-UseRailUK
Qualify
Conceive
Refine
Realise
The One:One Collection includes some of the most iconic and historically important UK railway locomotives and rolling stock, the legacy of a collector whose passion for railways provides inspiration for engineers, artists and craftspeople as well as rail enthusiasts.
With objects from the collection currently located across the country, the new museum at Margate will bring them together for the first time, at an appropriately historic site: the home of model railway manufacturer Hornby.
The site is a 12,000-square-metre warehouse, formerly used by Hornby to produce its model locomotives.
Following an invited competition, our brief, unusually, was not to solve a defined problem, but to work with the museum more iteratively on “museum in the making”.
Through minimal intervention, our scheme aims to display the collection at its best, as well as developing it – and preserving it – for future generations.
Our proposals take a light-touch approach, retrofitting the existing warehouse building and reusing materials wherever possible – so, for example, the storage racking found in the space will be repurposed for exhibition stands.
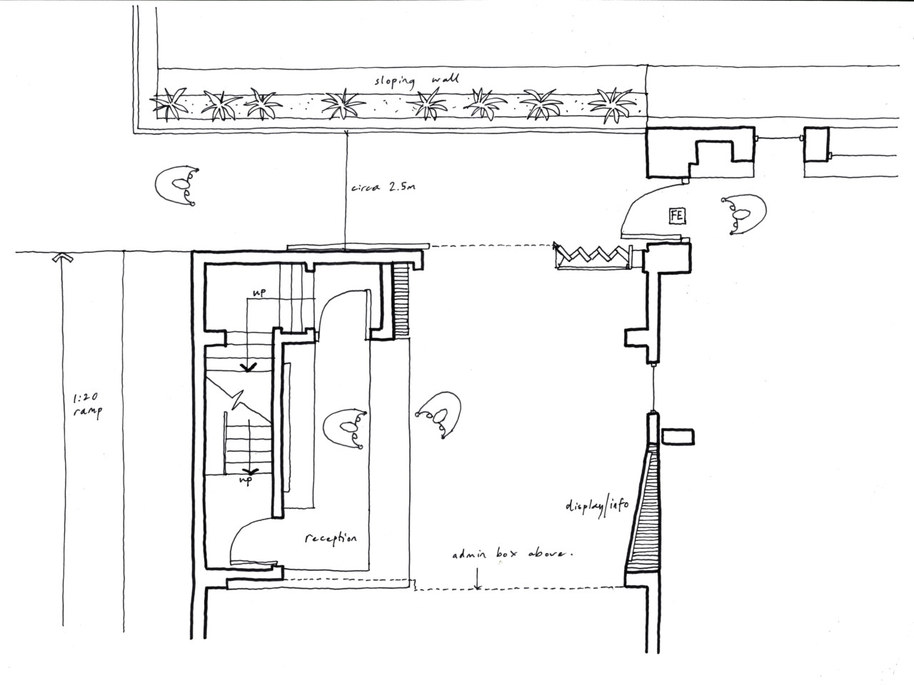
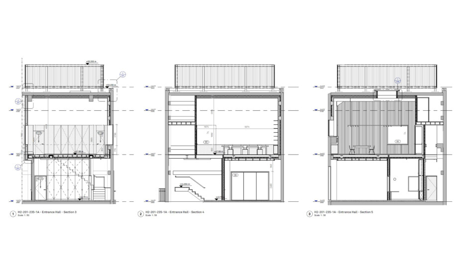
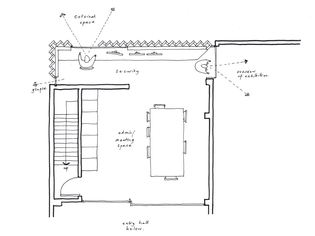
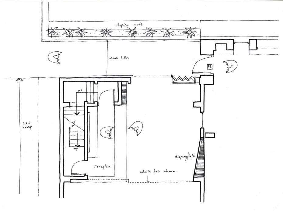
We have opened up part of the old building fabric to create an impressive entry sequence into the main engineering hall.
The main hall will showcase iconic locomotives and historic rolling stock, with a mezzanine level displaying models and other memorabilia. As many of the collection will be still be used from time to time, the collection will change over time, encouraging repeat visits.
At lower ground floor, there will be a café, workshop area and additional exhibition space.
“It is a privilege to work on this significant cultural project in my local area. The One:One Collection has found a remarkable home, with breathtaking spaces that we look forward to working with across the years ahead.”
Scott Grady, Haptic
The design has been developed so that construction can be phased, with new spaces opened up in future years.





















































